Meet Our Intern Ruth
7 April 2026
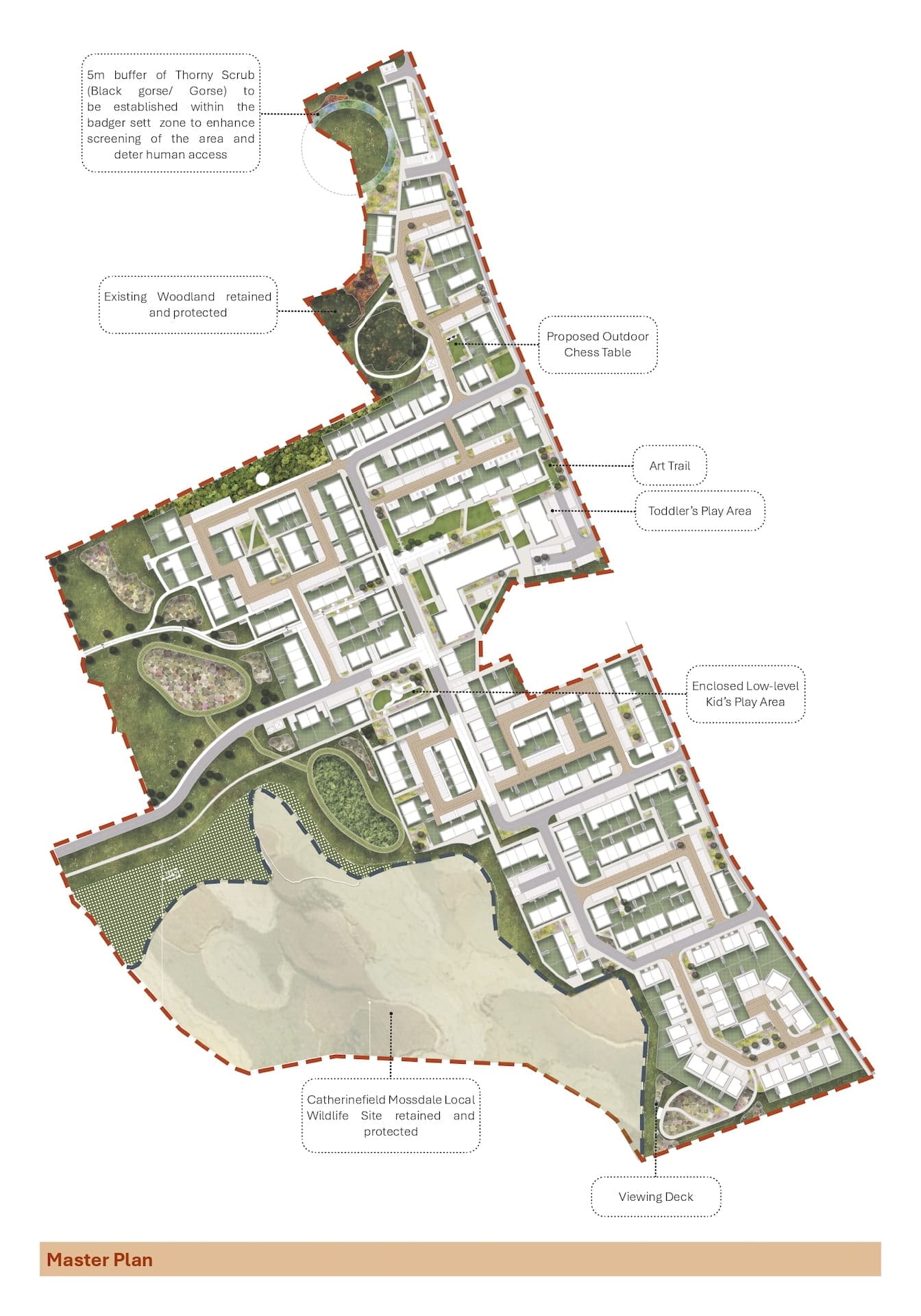
TGP are delighted to announce that Wheatley Homes South have been granted Planning Permission for nearly 300 new homes at Catherinefield Farm on the outskirts of Dumfries. The development features a Livingwell Block providing 41 flats for people aged 55 and over.
The landscape treatment links the rural setting to the housing with robust planting, whilst protecting the environmentally sensitive Catherinefield Moss Local Wildlife Site.
An Active Travel cycle route links the development to Locharbriggs, whilst local play areas and seating will encourage residents to enjoy the outdoors and create a sense of community.





